Neufreimann WA4
Der Entwurfsbeitrag folgt den Ideen des städtebaulichen Masterplans, der durch die stringente Anordnung der Blockrandbebauungen, durchzogen mit gutmaßstäblichen Stadträumen und durchwoben mit Grünboulevards sowie die Akzentuierung durch Hochpunkte wahrgenommen wird. Das Thema des städtischen Blockes wird konsequent umgesetzt. Die Höhenentwicklung mit einem durchgehenden 7-geschossigen Baukörper, einem Zusatzgeschoss im Osten und nur einem schlanken Hochhaus am Entree des Grünboulevards ist ein wesentlicher und wirtschaftlicher Bestandteil des städtebaulichen Entwurfs. Ergänzungen durch unterschiedlich große Pergolen im Dachgartenbereich bilden zusätzliche subtile Volumina, die den Blockrand in seiner Höhenentwicklung weiter dynamisieren.
Gewebte Strukturen, inspiriert durch Anni Albers Arbeiten, prägen das Thema des Entwurfes genauso wie ein gemeinschaftlich gelebtes urbanes Miteinander.
Wie Schuss und Kette werden Gebäude, Stadtraum und Grünstrukturen übergeordnet miteinander verwoben. Der kompakte, auf den ersten Blick geschlossene Block erhält durch die Kombination von Loggien und filigran durchwobenen Wandteilen eine Rhythmisierung und hebt so den Turm besonders hervor.
Strukturierte Achsen in gleichmäßigen und immer wiederkehrenden Achsrastern, die sich treffen und ineinander weben sind die Grundlage der Raumplanung. Die Wohnungen von 1. bis 7. Obergeschoss sind modular aufgebaut und können relativ beliebig gestrickt werden. Im Turm werden Clusterwohnungen mit autonomen Mikroappartements und gemeinsamen Wohnräumen angeboten, die bei Bedarf auch zu klassischen 3- und 4 Zi-Wohnungen umfunktioniert werden können.
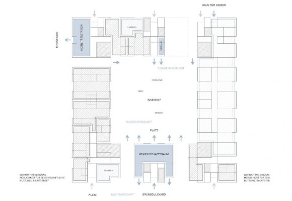
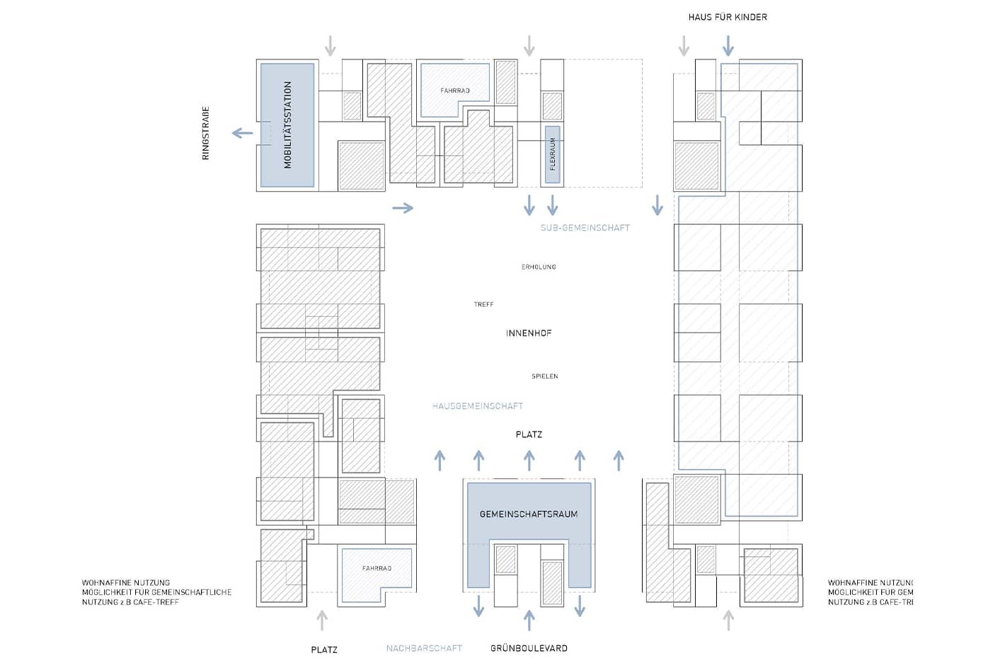
Das Erdgeschoss wird aktiv gestaltet und nimmt neben großzügig lichten Fahrradräumen die Mobilitätsstation, einen großzügigen Gemeinschaftsraum als Schnittstelle von Grünboulevard zum Innenhof hin und wohnaffine Nutzungen wie Café, Werkstatt auf.
Das Quartier funktioniert ganz im Prinzip der Schwammstadt und der Biodiversität. Die Dächer werden intensiv genutzt und können im Bereich der Pergolen Ebene als intensiv begrünte Dachflächen mit Treffpunkten, Spielmöglichkeiten und urban Gardening erlebt werden.
Eine möglichst wirtschaftliche und nachhaltige Baukonstruktion steht im Focus der Entwurfskonstruktion. Die in der Tiefe optimierten Gebäude des Blockrandes entstehen aus punktgestützten Flachdecken aus Stahlbeton, die viel Interpretationsraum für Raumabfolgen und Materialität sowie spätere Nutzungen lassen. Eine nichttragende Fassade kann durch die wiederkehrenden Rastermaße in Holz oder einer beliebigen anderen Systembauwand innerhalb der mit Stahlbetonelementen durchwobenen Achsraster hergestellt werden. Auch die Holz Alu Fensterelemente sind in Ihrer Vielzahl an Wiederholungen ein wirtschaftliches Element des Gesamtkomplexes.






